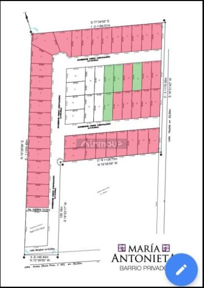
Lote en Venta en Lujan de Cuyo, Mendoza.

Lujan de Cuyo Mendoza

Maria Antonieta, Mayor Drummond

ARAOZ RUTA 60 S/N

500m2

Descripción

Rodríguez Damonte Vende – Lote en Barrio Privado María Antonieta

Ubicado en el corazón de manzana, este exclusivo lote ofrece una excelente orientación al Norte, con 13 metros de frente y una superficie total de 500 m².

Valor agregado

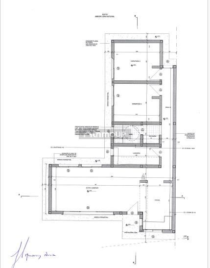
El lote cuenta con el inicio de obra y plano aprobado para una vivienda de 93 M².
Actualmente, se encuentran ejecutadas las fundaciones:

Plateas y vigas de encadenado ya hormigonadas, delimitando la base estructural.

Armaduras verticales de hierro (esperas de columnas) listas para el levantamiento de la estructura portante.

Terreno nivelado y cercado con vallado provisorio de obra.

El avance estimado corresponde al 10–15% del total de la obra, con una base sólida para continuar la construcción sin demoras.

Entorno y vistas

Desde el lote se aprecian inmejorables vistas a la Cordillera y a los viñedos de la Bodega Otero Ramos, un entorno único que combina naturaleza y exclusividad.

Servicios y amenities del barrio

Agua, luz y gas natural.

Calles asfaltadas.

Ingreso mediante acceso biométrico y portones automatizados.

Guardias de seguridad las 24 hs.

Cierre perimetral de mampostería.

Cerco eléctrico y cámaras de seguridad en todo el perímetro.

Condiciones

Posesión inmediata y escritura.

Ubicación en la zona de mayor crecimiento de barrios privados de Mendoza,

Rodriguez Damonte Mat.941


Datos de la propiedad

  • ID#
    855-748
  • Tipo de construcción
    Lote
  • Condición
    Venta
  • Superficie Total m2
    500
  • Luz Eléctrica
  • Agua
  • Gas
  • Cloacas
    No
  • Barrio Privado
  • Tiene Expensas
  • Valor de Expensas
    198000
  • Financiación
  • ¿Recibe Permuta?

Ubicación

Araoz Ruta 60 S/N

Avisos similares